Fredericiagade 5T, 9000 Aalborg

Udlejet

Udlejet

Hyggelig 2-værelses lejlighed

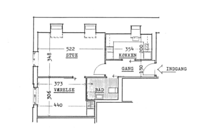
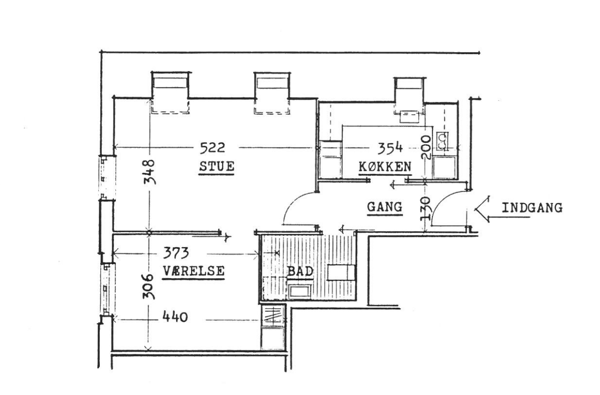
Lejligheden er bestående af en entré med overtøjsopbevaring som fører til en fordelingsgang hvor vi til den ene side har et nyere køkken med en opvaskemaskine og til den anden side har et soveværelse med indbyggede skabe. Mellem soveværelse og stue har vi et badeværelse med separat brus, som også er af nyere materialer. Til sidst har vi lejlighedens stue, som er pænt rummelig.

Alle lejligheder i bygningen er handicapvenlige, da de er forsynede med skydedøre, god plads og en elevator. I bygningens kælder er der et depotrum til hver lejlighed samt en vaskekælder.
Udover disse faciliteter er der en dejlig gårdhave med bænke og en legeplads.

Der er parkeringspladser til ejendommen, som man kan få gratis licens til, men de kan dog kun tilgås efter først-til-mølle princippet, da der ikke er pladser nok til alle beboere.

I Aalborg Vestby har husene karakter. Facaderne rangerer fra slidte murstensværk, næsten det rå New York-look, til nyere lejlighedskomplekser.
Kvarteret har meget at byde på. Der er aldrig langt til den nærmeste dagligvarebutik, fast food restaurant eller café. Det er også i Aalborg Vestby du finder Friluftsbadet, Vestre Fjordpark og Aalborg Stadion.
Området er meget populært blandt unge, men det byder på noget for enhver smag. Hvis du er til en morgendukkert eller har du altid et bibliotekskort på dig, er Vestbyen også hjem til Haraldslund. Grønne arealer findes der også i form af både Fjordmarken og Søheltens Have.

Aconto: 500 i varme og 400 i vand.

For fremvisning kontakt os på tlf.: 70 60 59 70 eller sms 30 14 88 06

Pris:
5.995 kr/md
Indflytning fra
Snarest muligt
Boligtype
Lejlighed
Værelser
2
Areal
63m2
Husdyr
Tilladt
Økonomi
Aconto
900,-
Depositum
17.985,-
Forudbetalt leje
0,-
Total indflytningspris
24.880,-
Parkering
Opvaskemaskine
Elevator

Spørgsmål?

Så ring eller skriv.

Vi er klar til at hjælpe dig med at finde den rigtige lejebolig.

Kig indenfor

Du kan klikke på billederne for at se dem i en større udgave
Er denne din kommende bolig?

Book en fremvisning

Optin

Hvem er vi?

Hos Nextkey finder du lejeboliger til alle typer. Også dig. Fra første opkald til femte fremvisning, og hele vejen til du står med nøglerne i hånden, er vi med dig i form af personligt engagement og ægte nærvær.

Find os her

Nextkey ApS
Rødhættevej 8
DK-9400 Nørresundby
Dalgasgade 6
DK-9000 Aalborg 

CVR: 41279117
Copyright © 2026
Skriv mig op
Udfyld formularen, og vi finder boliger der matcher dine ønsker for dig.
Så snart vi har fundet et match til dig, så kontakter vi dig.
1
Placering
2
Størrelse
3
Pris & Ønsker
4
Skriv mig op
Hvad vil du bo i?
m2
m2
Min. antal værelser
Særlige ønsker?
kr.
kr.
Hvor søger du bolig?
Hvilken type bolig søger du?
Pris
kr.
kr.
Størrelse
m2
m2
Værelser
Overtagelse
Faciliteter

Kontakt os og hør mere om vores pakker!

Blank Form (#4)