Fredericiagade 7G, 9000 Aalborg

Udlejet

Udlejet

Dejlig lys og hyggelig 2-værelses lejlighed

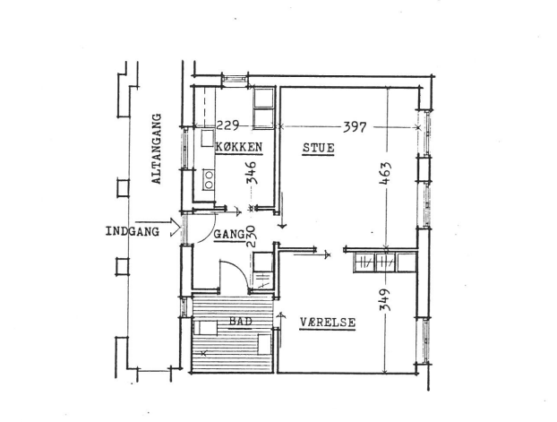
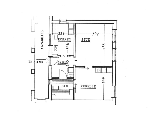
Denne super dejlige lejlighed er meget rummelig og lys. Når man træder ind i lejligheden kommer man ind i entreen, hvor man kan sætte sit overtøj og sko, inden man kommer ind i lejligheden. Fra entreen har vi også den ene indgang til badeværelset. Ejendommen er handicap/ældrevenlig, og har derfor to indgange. Man kan selvfølgelig altid vælge, at lukke det ene af, og eventuelt stille en kommode m.m. foran. Når man træder ligeud fra entreen kommer vi ind i den store stue, hvor man kan se, at der er masser af gulvplads og nogle gode vinduer. Der er flere måder at indrette rummet på, og man kan også sagtens have et spisebord derinde foruden sofa og tv. Fra entreen har man også indgang til køkkenet, som er i nyere flotte materialer. Der er indsat en opvaskemaskine, og ovnen er placeret højt oppe, så man ikke skal bukke sig ned. Her er god plads både til opbevaring og til at sætte sit eget præg.
Til slut har vi soveværelset. Det er ligeledes rummeligt og har i forvejen et godt klædeskab. Herfra er der også indgang til badeværelset.
Ude foran lejligheden er der en svalegang ud mod et dejligt gårdmiljø.

Der er et tilhørende fælles vaskeri i modsatte bygning, og der er elevator i ejendommen. Det er dog muligt at installere en vaskemaskine på badeværelset.
Der kan udstedes gratis p-licens til ejendommens parkeringspladser, som dog er efter først-til-mølle princip.

OBS! Husdyr på max 10 kg er tilladt.

Område:
I Aalborg Vestby har husene karakter. Facaderne rangerer fra slidte murstensværk, næsten det rå New York-look, til nyere lejlighedskomplekser. 

Kvarteret har meget at byde på. Der er aldrig langt til den nærmeste dagligvarebutik, fast food restaurant eller café. Det er også i Aalborg Vestby du finder Friluftsbadet, Vestre Fjordpark og Aalborg Stadion. 

Området er meget populært blandt unge, men det byder på noget for enhver smag. Hvis du er til en morgendukkert eller har du altid et bibliotekskort på dig, er Vestbyen også hjem til Haraldslund. Grønne arealer findes der også i form af både Fjordmarken og Søheltens Have.

For fremvisning kontakt os på tlf.: 70 60 59 70 eller sms 30 14 88 06

Lejenr.: 1214OBG

Pris:
6.517 kr/md
Indflytning fra
1. juni 2025
Boligtype
Lejlighed
Værelser
2
Areal
74m2
Husdyr
Tilladt
Økonomi
Aconto
900,-
Depositum
19.551,-
Forudbetalt leje
0,-
Total indflytningspris
26.968,-
Parkering
Opvaskemaskine
Elevator
Ældrevenlig

Spørgsmål?

Så ring eller skriv.

Vi er klar til at hjælpe dig med at finde den rigtige lejebolig.

Kig indenfor

Du kan klikke på billederne for at se dem i en større udgave
Er denne din kommende bolig?

Book en fremvisning

Optin

Hvem er vi?

Hos Nextkey finder du lejeboliger til alle typer. Også dig. Fra første opkald til femte fremvisning, og hele vejen til du står med nøglerne i hånden, er vi med dig i form af personligt engagement og ægte nærvær.

Find os her

Nextkey ApS
Rødhættevej 8
DK-9400 Nørresundby
Dalgasgade 6
DK-9000 Aalborg 

CVR: 41279117
Skriv mig op
Udfyld formularen, og vi finder boliger der matcher dine ønsker for dig.
Så snart vi har fundet et match til dig, så kontakter vi dig.
1
Placering
2
Størrelse
3
Pris & Ønsker
4
Skriv mig op
Hvad vil du bo i?
m2
m2
Min. antal værelser
Særlige ønsker?
kr.
kr.
Hvor søger du bolig?
Område
Hvilken type bolig søger du?
Pris
kr.
kr.
Pris
Størrelse
m2
m2
Boligareal
Værelser
Overtagelse
Overtagelse
Faciliteter

Kontakt os og hør mere om vores pakker!

Blank Form (#4)