Hovensvej 61, 9440 Aabybro

Udlejet

Udlejet

Nybygget rækkehus i 'et plan - Aabybro

Særdeles velbeliggende nybyggeri med 16 rækkehuse i Aabybro.
Boligerne på 112-126 m2. opføres i gode gedigne kvalitetsmaterialer – ude som inde!

Indvendig:
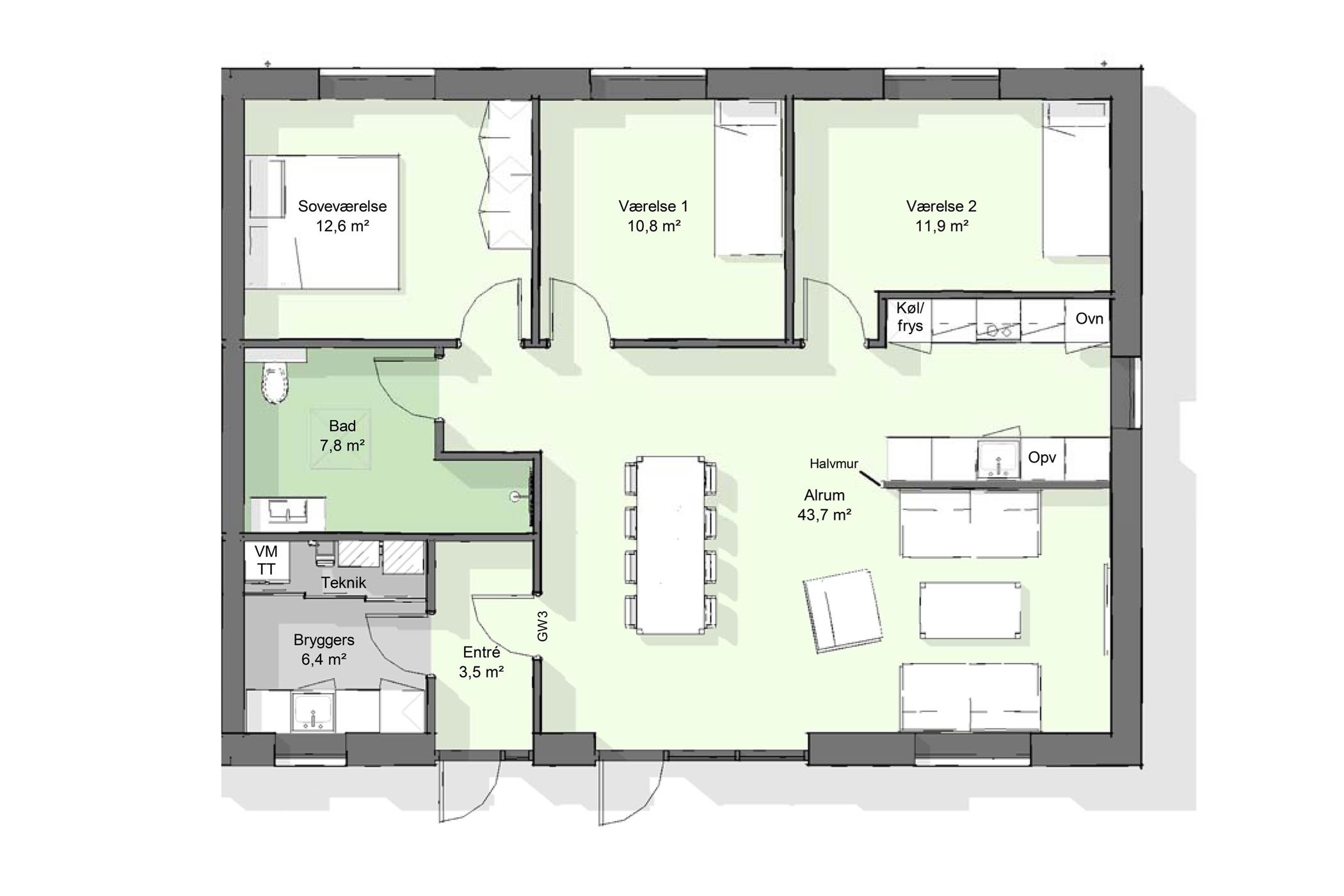
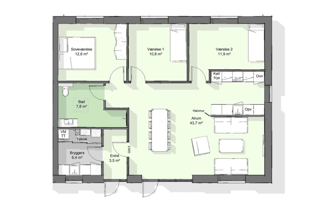
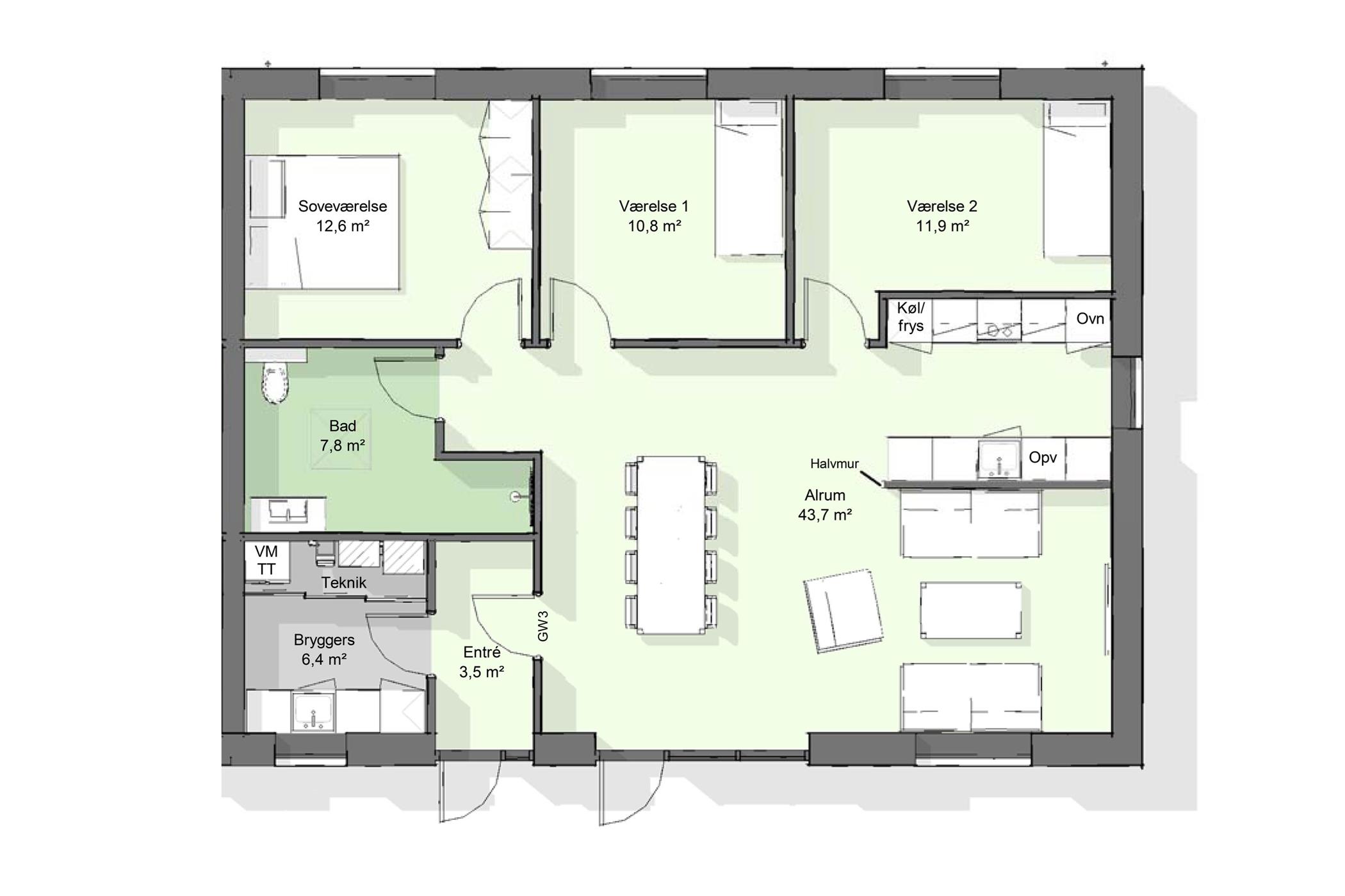
Denne bolig er indrettet med entre, køkkenalrum og stue med udgang til skøn terrasse, 2 værelser, soveværelse samt badeværelse med bruseniche.

Gulvvarme i hele boligen.

Udvendig:
Overkommelig have med plæne. Flisebelægning på terrasserne og den dobbelte indkørsel med plads til 2 biler. Carport på 22 m2. og redskabsskur på 5 m2.

Beliggenhed:
Hovensvej er placeret på en dejlig plet i den nordlige del af Aabybro. Kvarteret er forbundet med Aabybro bymidte via stisystemer. Aabybro byder på bl.a. DGI-hus med svømmehal, golfbane, special forretninger og meget mere.

Kontakt os for fremvisning på tlf.: 70 60 59 70 eller sms: 30 14 88 06

Pris:
10.161 kr/md
Indflytning fra
1. marts 2025
Boligtype
Rækkehus
Værelser
4
Areal
115m2
Husdyr
Tilladt
Økonomi
Aconto
300,-
Depositum
30.483,-
Forudbetalt leje
0,-
Total indflytningspris
40.944,-
Parkering
Terrasse/altan
Opvaskemaskine
Vaskemaskine
Tørretumbler

Spørgsmål?

Så ring eller skriv.

Vi er klar til at hjælpe dig med at finde den rigtige lejebolig.

Kig indenfor

Du kan klikke på billederne for at se dem i en større udgave
Er denne din kommende bolig?

Book en fremvisning

Optin

Hvem er vi?

Hos Nextkey finder du lejeboliger til alle typer. Også dig. Fra første opkald til femte fremvisning, og hele vejen til du står med nøglerne i hånden, er vi med dig i form af personligt engagement og ægte nærvær.

Find os her

Nextkey ApS
Rødhættevej 8
DK-9400 Nørresundby
Dalgasgade 6
DK-9000 Aalborg 

CVR: 41279117
Skriv mig op
Udfyld formularen, og vi finder boliger der matcher dine ønsker for dig.
Så snart vi har fundet et match til dig, så kontakter vi dig.
1
Placering
2
Størrelse
3
Pris & Ønsker
4
Skriv mig op
Hvad vil du bo i?
m2
m2
Min. antal værelser
Særlige ønsker?
kr.
kr.
Hvor søger du bolig?
Område
Hvilken type bolig søger du?
Pris
kr.
kr.
Pris
Størrelse
m2
m2
Boligareal
Værelser
Overtagelse
Overtagelse
Faciliteter

Kontakt os og hør mere om vores pakker!

Blank Form (#4)