Østre Havnepark 10, st. 2, 9000 Aalborg

Udlejet

Udlejet

Lækker 2-værelses lejlighed med altan

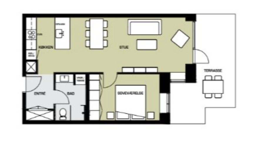
Denne lejlighed er en super lækker nybygget lejlighed med havudsigt. Lejligheden er bestående af en god entré med indbygget skabsplads, et stort badeværelse med vaskesøjle og separat bruseniche i gode materialer. Derudover er der et stort og rummeligt køkken alrum, hvor der er et stort køkken i hvide lækre materialer. Der er endda ved køkken-øen plads til barstole. Spisebordsområde og tv område er der også rigeligt med plads til. Soveværelset er med indbyggede skabe og man kan både have en dobbeltseng samt et mindre skrivebord.
Gennemgående i hele lejligheden er der gulvvarme og der er store vinduer næsten fra gulv til loft.

Østre Havnepark 10 er adressen på helt nye lejligheder som har til huse på det tidligere industriområde ved Østre Havnebassin.

Målet for området er at skabe en tæt urban bydel som samtidig er et anderledes bymiljø samt bevare et aktivt byliv. Der er opført nutidigt højhusbyggeri som er tilpasset efter havneprofilen, jernbanens tidligere forløb og havnebassinet som danner rammen om boligerne.

Østre Havn er Aalborgs nye levende bykvarter. Her foreligger skønne planer for hyggelige oaser og grønne arealer lige udenfor døren.

Områdets samlingspunkt er havnebassinet, der er udformet så der opstår en del opholdsarealer ved havnekanten. Her er liv, leg og lange sommeraftner, og snarest kan du sidde på en af de hyggelige cafeer og nyde udsigten over vandet.

OBS! Billederne er fra en anden lejlighed, der ligner rigtig meget og billederne er for at illustrerer materialer og udseende.

For fremvisning kontakt os på tlf.: 70 60 59 70 eller sms: 30 14 88 06

Lejenr. 1260TS

Pris:
7.200 kr/md
Indflytning fra
Snarest muligt
Boligtype
Lejlighed
Værelser
2
Areal
73m2
Husdyr
Ikke tilladt
Økonomi
Aconto
550,-
Depositum
21.600,-
Forudbetalt leje
7.200,-
Total indflytningspris
36.550,-
Parkering
Terrasse/altan
Elevator

Spørgsmål?

Så ring eller skriv.

Vi er klar til at hjælpe dig med at finde den rigtige lejebolig.

Kig indenfor

Du kan klikke på billederne for at se dem i en større udgave
Er denne din kommende bolig?

Book en fremvisning

Optin

Hvem er vi?

Hos Nextkey finder du lejeboliger til alle typer. Også dig. Fra første opkald til femte fremvisning, og hele vejen til du står med nøglerne i hånden, er vi med dig i form af personligt engagement og ægte nærvær.

Find os her

Nextkey ApS
Rødhættevej 8
DK-9400 Nørresundby
Dalgasgade 6
DK-9000 Aalborg 

CVR: 41279117
Skriv mig op
Udfyld formularen, og vi finder boliger der matcher dine ønsker for dig.
Så snart vi har fundet et match til dig, så kontakter vi dig.
1
Placering
2
Størrelse
3
Pris & Ønsker
4
Skriv mig op
Hvad vil du bo i?
m2
m2
Min. antal værelser
Særlige ønsker?
kr.
kr.
Hvor søger du bolig?
Område
Hvilken type bolig søger du?
Pris
kr.
kr.
Pris
Størrelse
m2
m2
Boligareal
Værelser
Overtagelse
Overtagelse
Faciliteter

Kontakt os og hør mere om vores pakker!

Blank Form (#4)