Stigsborg Parkvej 114, 5. 1

9400 Nørresundby

Lækker 3-værelses med solrig altan

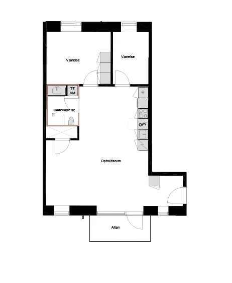
Når du træder ind i lejligheden, mødes du af det store og lyse køkken-alrum, hvor lyset strømmer ind gennem de store vinduespartier. Lejligheden er beliggende på øverste etage, så du får en fantastisk udsigt over Stigsparken, ejendommens hyggelige have, samt tagtoppene i horisonten. I køkkenet kan du glæde dig til at lave mad i det lækre grebsfrie HTH-køkken med Corian-bordplade og fuld AEG hvidevarepakke. Fra det store køkken-alrum har du udgang til den sydvendte altan, hvor du kan nyde de varme sommeraftener med grill og hyggelige stunder., her kan du nyde solen fra morgen til aften. Derudover får du to gode værelser, hvoraf det ene er med indbyggede skabe. Begge værelser har udsigt over den flotte park. Badeværelset er lyst og lækkert med vaskesøjle.

Udenfor får du imponerende fællesområder, der indbyder til både afslapning og sociale aktiviteter. Tag en pause på den store grønne tagterrasse, hvor du kan nyde solen i det idylliske orangeri, eller den charmerende gårdhave, der er fyldt med frugttræer og hyggekroge. Her kan du slappe af og nyde roen, mens du stadig er tæt på alt, hvad Stigsborg har at byde på.

Lejligheden er beliggende i det nyopførte Fjordpynten, i Nørresyndbys nye bydel, Stigsborg. Her får du en beliggenhed helt i top, med udsigt til fjorden, den grønne park og byen.

OBS! Der er mulighed for leje af parkeringsplads. Husdyr kan tillades efter aftale.

Område: 
Stigsborg er en ny bydel under udvikling på solsiden af Limfjorden i Nørresundby. Området dækker ca. 54 hektar mellem Limfjordsbroen og Limfjordstunnelen og vil over de næste 20 år blive forvandlet til et moderne byområde. Planen omfatter ca. 4.000 boliger med plads til omkring 7.500 beboere i en blanding af lejligheder, rækkehuse og byhuse.

Bydelen får sin egen skole, daginstitutioner, plejehjem, butikker, caféer og fællesfaciliteter, samlet i et bydelshus kaldet Huset Stigsborg. Et centralt element er Stigsparken, en 15 hektar stor bypark, som forbinder fjorden med grønne og rekreative områder. Der planlægges desuden promenader, stier og en ny cykel- og gangbro, der binder Stigsborg tættere til Aalborg centrum.

Området har historiske rødder som middelalderligt voldsted og har siden været præget af industri, men udvikles nu med fokus på arkitektonisk kvalitet, bæredygtighed og et aktivt byliv tæt ved fjorden.

Lejenr.: 1260ESB

Pris:
8.990 kr/md
Indflytning fra
1. december 2025
Boligtype
Lejlighed
Værelser
3
Areal
81m2
Husdyr
Tilladt
Økonomi
Aconto
700,-
Depositum
26.970,-
Forudbetalt leje
0,-
Total indflytningspris
36.660,-
Parkering
Terrasse/altan
Opvaskemaskine
Vaskemaskine
Tørretumbler
Elevator
Delevenlig
Ældrevenlig

Spørgsmål?

Så ring eller skriv.

Vi er klar til at hjælpe dig med at finde den rigtige lejebolig.

Kig indenfor

Du kan klikke på billederne for at se dem i en større udgave
Er denne din kommende bolig?

Book en fremvisning

Optin

Hvem er vi?

Hos Nextkey finder du lejeboliger til alle typer. Også dig. Fra første opkald til femte fremvisning, og hele vejen til du står med nøglerne i hånden, er vi med dig i form af personligt engagement og ægte nærvær.

Find os her

Nextkey ApS
Rødhættevej 8
DK-9400 Nørresundby
Dalgasgade 6
DK-9000 Aalborg 

CVR: 41279117
Skriv mig op
Udfyld formularen, og vi finder boliger der matcher dine ønsker for dig.
Så snart vi har fundet et match til dig, så kontakter vi dig.
1
Placering
2
Størrelse
3
Pris & Ønsker
4
Skriv mig op
Hvad vil du bo i?
m2
m2
Min. antal værelser
Særlige ønsker?
kr.
kr.
Hvor søger du bolig?
Område
Hvilken type bolig søger du?
Pris
kr.
kr.
Pris
Størrelse
m2
m2
Boligareal
Værelser
Overtagelse
Overtagelse
Faciliteter

Kontakt os og hør mere om vores pakker!

Blank Form (#4)