Stigsborg Parkvej 167

9400 Nørresundby

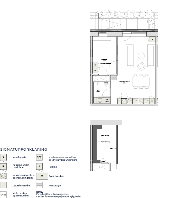
Lækker 2-værelses lejlighed i nybyggeri med terrasse

StigsborgHus er tegnet med mange skæve vinkler, der giver mulighed for mange forskellige lejlighedstyper. Derfor kan du vælge mellem hele 149 skønne lejeboliger, hvor kun få er ens. Boligerne findes med 1-5 værelser på størrelser fra 39-160 m². Alle lejlighederne har udgang til en skøn altan, hvor størrelsen er mere generøs end hvad man typisk ser.

Uanset hvilken lejebolig du vælger, kan du glæde dig over den enkle nordiske stil, hvor der er kælet for alle detaljer. Boligerne er indrettet med eksklusive køkkener fra HTH i enten lys beige eller grå, der skaber en smuk kontrast og dybde.

Du får alt i hårde hvidevarer, vaskesøjle i badeværelset – kombineret vaskemaskine og tørretumbler i studios – gulvvarme i alle rum.

Der hører desuden depotrum til alle boliger – enten i lejligheden eller i P-etagen – eller begge steder.

Der er mulighed for leje af p-plads i husets p-dæk til 850 kr./md. Der er ledige pladser til de store lejligheder, mens beboere i de mindre lejligheder kan blive skrevet op på venteliste. Derudover findes 25 ikke-faste pladser nær bygningen  til 500 kr./md. Cykelparkering er centralt placeret og under trapperne til gårdrummet.

StigsborgHus er beliggende i Aalborgs nye attraktive bydel på Limfjordens solside, hvor du har alt det, der betyder noget, tæt på. Her kan du vælge mellem 149 forskellige lejeboliger, så der er den perfekte bolig til dig, uanset hvor du er i livet, eller hvor mange I skal bo sammen.

OBS! Billederne er ikke nødvendigvis af den pågældende bolig. Se plantegning for korrekt indretning.

Kat ikke tilladt. Hund max 10 kg.

Lejenr.: 1260WE

Pris:
6.950 kr/md
Indflytning fra
Snarest mulig
Boligtype
Lejlighed
Værelser
2
Areal
66m2
Husdyr
Tilladt
Økonomi
Aconto
725,-
Depositum
20.850,-
Forudbetalt leje
6.950,-
Total indflytningspris
35.475,-
Parkering
Terrasse/altan
Opvaskemaskine
Vaskemaskine
Tørretumbler
Elevator
Delevenlig

Spørgsmål?

Så ring eller skriv.

Vi er klar til at hjælpe dig med at finde den rigtige lejebolig.

Kig indenfor

Du kan klikke på billederne for at se dem i en større udgave
Er denne din kommende bolig?

Book en fremvisning

Optin

Hvem er vi?

Hos Nextkey finder du lejeboliger til alle typer. Også dig. Fra første opkald til femte fremvisning, og hele vejen til du står med nøglerne i hånden, er vi med dig i form af personligt engagement og ægte nærvær.

Find os her

Nextkey ApS
Rødhættevej 8
DK-9400 Nørresundby
Dalgasgade 6
DK-9000 Aalborg 

CVR: 41279117
Skriv mig op
Udfyld formularen, og vi finder boliger der matcher dine ønsker for dig.
Så snart vi har fundet et match til dig, så kontakter vi dig.
1
Placering
2
Størrelse
3
Pris & Ønsker
4
Skriv mig op
Hvad vil du bo i?
m2
m2
Min. antal værelser
Særlige ønsker?
kr.
kr.
Hvor søger du bolig?
Område
Hvilken type bolig søger du?
Pris
kr.
kr.
Pris
Størrelse
m2
m2
Boligareal
Værelser
Overtagelse
Overtagelse
Faciliteter

Kontakt os og hør mere om vores pakker!

Blank Form (#4)