Vesterå 17, 5. th., 9000 Aalborg

Udlejet

Udlejet

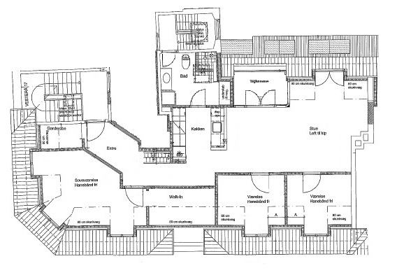
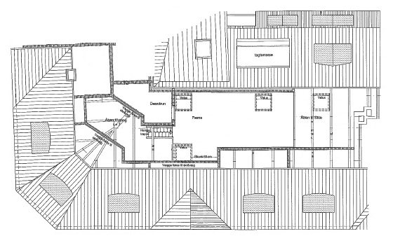
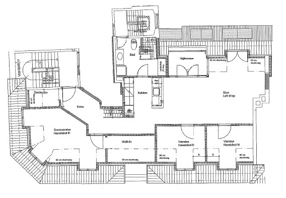
Stor delevenlig 4 værelses lejlighed i Vesterå

Stor delevenlig 4 værelses lejlighed i Vesterå

Lejlighed indrettet i ejendommens tagetage med afskærmet og indbygget tagterrasse med udsigt mod syd/vest der er monteret stikkontakt til grill.

Loft til kip og fritliggende bjælker.

Stor lang hems, der er åben i begge ender og med adgang til pulterrum.

Flot køkken i hvid højglans og valnød med keramisk komfur, køle/fryseskab, emhætte og opvaskemaskine.

Badeværelse med marmor klinker med gulvvarme, håndklædetørrer, vask med skabs arrangement i valnød samt kombineret vaskemaskine/tørretumbler.

Lejlighedens gulve er oliebehandlede fyrretræsgulve.

Lejemålet er uopsigeligt de første 12 måneder.

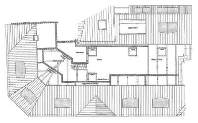
Ejendommene er opført i år 1919 og indeholder både erhvervslejemål og 21 gode boliger i varierende størrelser fra 68 m² til 147 m². Herudover er der parkeringspladser i gården, som udlejes til lejerne i ejendommen (efter venteliste). Lejlighederne i ejendommene er indrettet som 2-, 3- og 4-værelses lejligheder, hvor soveværelserne er placeret mod bagsiden af ejendommen, hvilket betyder, at eventuel trafik fra Borgergade ikke kan høres. Herudover er der installeret nyere Dannebrogsvinduer i lejlighederne, som har lyd- og energiglasruder, således man næsten ikke kan høre trafikken på Borgergade. Lejlighederne har generelt et godt lysindfald samt gode stuer og værelser med højt til loftet, så man får en rigtig god rumfornemmelse, når man er i lejlighederne. Herudover har de fleste af lejlighederne altaner. Ejendommen ligger i hjertet af Aalborg og med få meter til Limfjorden og endnu tættere på det hyggelige gågademiljø i Aalborg, så der er rig mulighed for hygge på havnefronten, shopping eller café besøg. Herudover ligger busstoppested til de fleste af busserne i Aalborg næsten lige uden for døren, så det er utrolig nemt at komme til studiet/arbejdet.

Kontakt os for en fremvisning på tlf.: 70 60 59 70 eller sms: 30 16 88 06

Lejenr: 1214AAB

Pris:
9.995 kr/md
Indflytning fra
Snarest muligt
Boligtype
Lejlighed
Værelser
4
Areal
119m2
Husdyr
Ikke tilladt
Økonomi
Aconto
1.300,-
Depositum
29.985,-
Forudbetalt leje
9.995,-
Total indflytningspris
51.275,-
Terrasse/altan
Opvaskemaskine
Vaskemaskine
Tørretumbler
Delevenlig

Spørgsmål?

Så ring eller skriv.

Vi er klar til at hjælpe dig med at finde den rigtige lejebolig.

Kig indenfor

Du kan klikke på billederne for at se dem i en større udgave
Er denne din kommende bolig?

Book en fremvisning

Optin

Hvem er vi?

Hos Nextkey finder du lejeboliger til alle typer. Også dig. Fra første opkald til femte fremvisning, og hele vejen til du står med nøglerne i hånden, er vi med dig i form af personligt engagement og ægte nærvær.

Find os her

Nextkey ApS
Rødhættevej 8
DK-9400 Nørresundby
Dalgasgade 6
DK-9000 Aalborg 

CVR: 41279117
Skriv mig op
Udfyld formularen, og vi finder boliger der matcher dine ønsker for dig.
Så snart vi har fundet et match til dig, så kontakter vi dig.
1
Placering
2
Størrelse
3
Pris & Ønsker
4
Skriv mig op
Hvad vil du bo i?
m2
m2
Min. antal værelser
Særlige ønsker?
kr.
kr.
Hvor søger du bolig?
Område
Hvilken type bolig søger du?
Pris
kr.
kr.
Pris
Størrelse
m2
m2
Boligareal
Værelser
Overtagelse
Overtagelse
Faciliteter

Kontakt os og hør mere om vores pakker!

Blank Form (#4)